TERRAIN – 704.0m² – ST MARTIN LA PLAINE
3 parcelles à SAINT MARTIN LA PLAINE – ATTENTION NE…
Vente
-
Vente
220275€
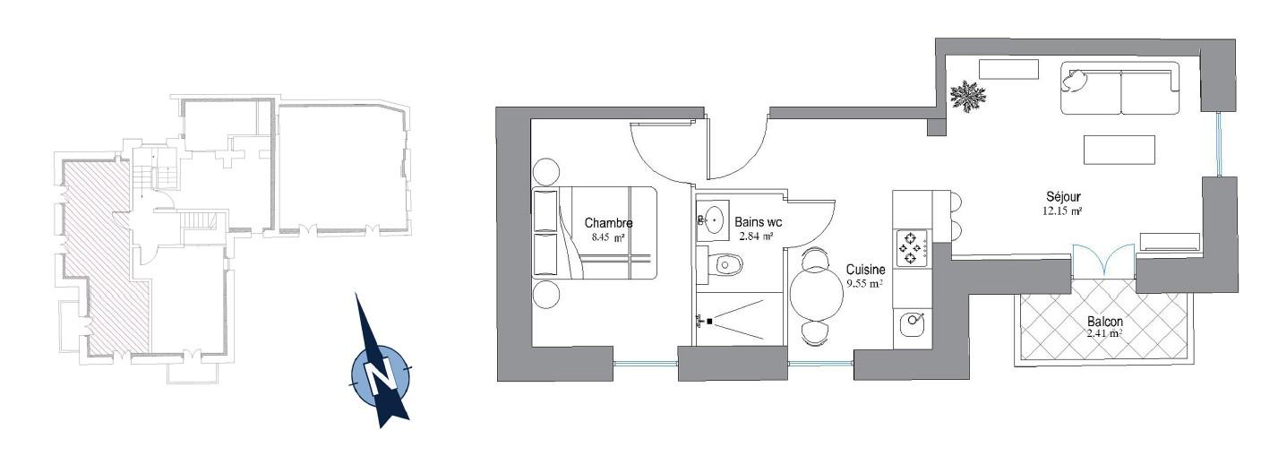
Appartement bourgeois 2 pièces proche plage – Référence du bien : FD1335
Contactez pour ce bien : DRAPIER Françoise au O6 95 04 54 33 ou par mail: f.drapier@athome-immobilier.fr
Très bel appartement de standing de 32.98 m² avec un balcon de 2.41 m² vue sur jardin Situé à Cannes à 600 m de la belle Plage du Midi. Appartement 2 pièces au sein d’une résidence Bourgeoise de 10 appartements. L’appartement entièrement rénové comme l’ensemble de la Résidence. Aucun travaux à prévoir. Appartement lumineux avec cuisine équipée semi ouverte. Belle salle de bain avec baignoire. Un balcon de 2.50 m² avec vue dégagé sur le jardin. A seulement 3.4 km du Palais des Festivals, cet appartement peut être un véritable pieds à terre et un excellent investissement avec une bonne rentabilité. Honoraires à la charge du vendeur. Le bien est à vendre par l’intermédiaire de l’agent commercial Françoise DRAPIER. DPE ANCIENNE VERSION.
3 parcelles à SAINT MARTIN LA PLAINE – ATTENTION NE…
-
Référence du bien: ADK1540 Contactez pour ce bien: M. Djoudi…
484000€
APPARTEMENT – 43.01m² – ST ETIENNE